SANTI

Galeria

SANTI

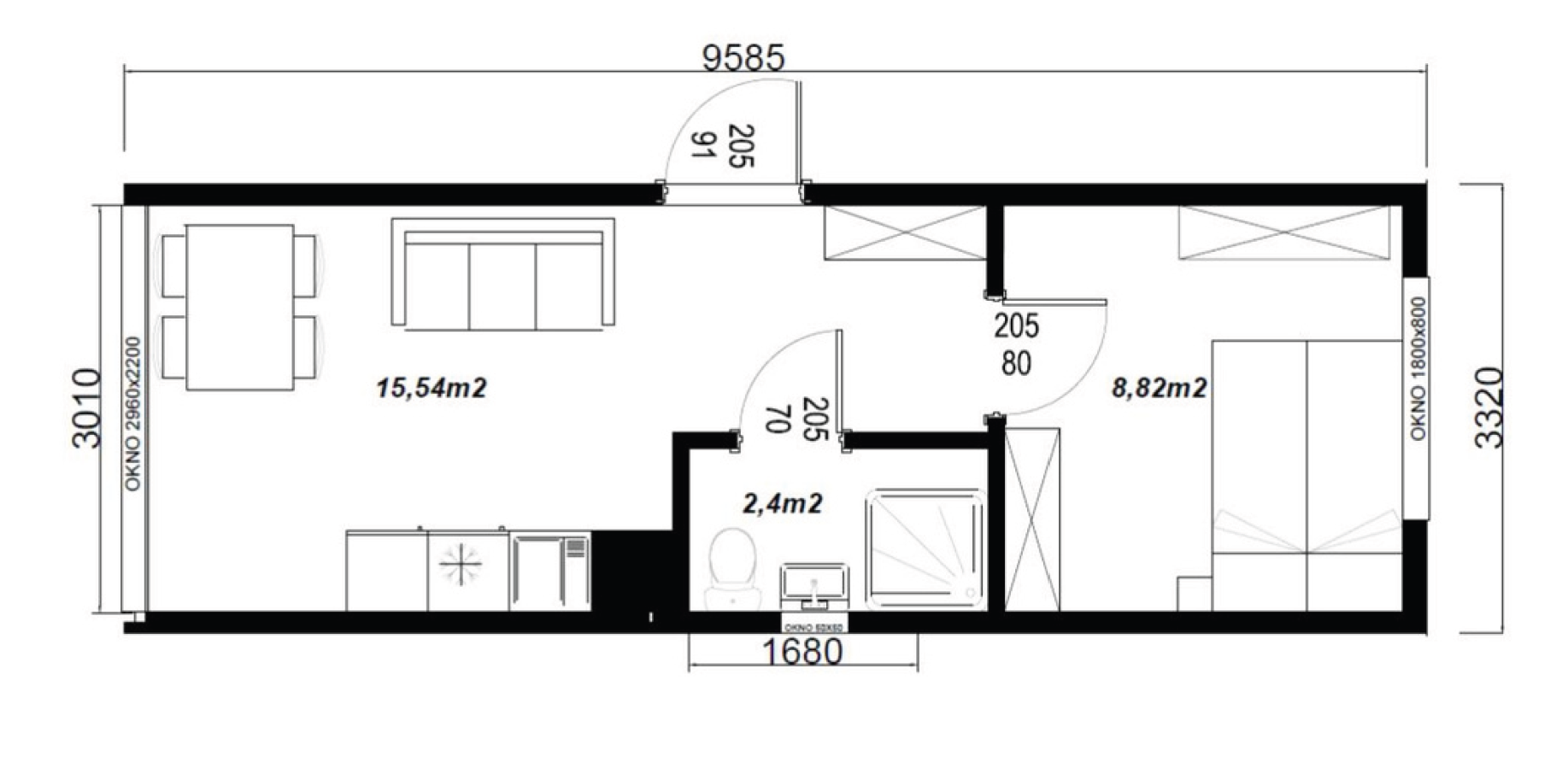
SANTI to kompaktowy dom całoroczny o powierzchni użytkowej 36 m², zaprojektowany z myślą o osobach ceniących minimalizm i funkcjonalność. Budynek ma dwuspadowy dach o kącie nachylenia 32°, powierzchnię parteru 26,76 m² oraz antresolę 9,24 m², która doskonale sprawdzi się jako sypialnia.

Konstrukcja oparta jest na stalowych profilach cynkowanych ogniowo, co zapewnia trwałość i odporność na korozję. Ściany i dach wykonane są z płyt warstwowych wypełnionych pianą PIR o grubości 120 mm, gwarantujących wysoką izolacyjność cieplną i akustyczną. Trójszybowe okna w systemie 7-komorowym zapewniają niski współczynnik przenikania ciepła (Uw nawet 0,76 W/m²K) oraz skutecznie chronią przed hałasem.

Czas budowy wynosi około 20 tygodni, a system płatności etapowych zapewnia elastyczność inwestycji. SANTI to nowoczesny i praktyczny dom, który łączy prostotę formy z komfortem codziennego użytkowania.

Ilość pokoi: 1+salon z kuchnią

Ilość łazienek: 1

Ilości pięter: 1

0
lat gwarancji

Czas budowy nawet 3 miesiące.

Informacje o obiekcie:

1.Kuchnia+salon 15.54m²

2.Łazienka 2.4m²

3.Sypialnia 8.82m²

Dlaczego SANTI?

  • SANTI to nowoczesny dom całoroczny o kompaktowej, dobrze zaprojektowanej przestrzeni
  • wyróżnia się prostą, minimalistyczną bryłą z dachem dwuspadowym (32°)
  • zaprojektowany z myślą o maksymalnym wykorzystaniu niewielkiego metrażu
  • funkcjonalny układ z antresolą pozwala na wyraźny podział strefy dziennej i prywatnej
  • wykonany w technologii stalowej, zapewniającej trwałość i odporność na lata
  • bardzo dobra izolacja dzięki płytom warstwowym 120 mm (ściany i dach)
  • duże przeszklenia zapewniają dobre doświetlenie i optyczne powiększenie wnętrza
  • idealny dla singla, pary lub jako inwestycja pod wynajem
  • nowoczesny design dopasowany do aktualnych trendów architektonicznych
  • możliwość indywidualnej aranżacji wnętrza pod własne potrzeby

Dostępne warianty:

Obejmuje wykonanie pełnej konstrukcji domu w technologii stalowej wraz z zabezpieczeniem budynku przed wpływem warunków atmosferycznych.

W zakres wchodzi:

  • konstrukcja nośna wykonana z profili stalowych, zgodna z projektem,
  • fundamenty wraz z izolacją,
  • ściany zewnętrzne z wypełnieniem izolacyjnym, przygotowane do dalszych prac wykończeniowych,
  • dach z pełnym pokryciem i obróbkami blacharskimi,
  • zamontowana stolarka okienna i drzwiowa zewnętrzna,
  • rynny i system odprowadzania wody deszczowej.

Dom w tym standardzie jest zamknięty i zabezpieczony — gotowy do dalszych prac wewnętrznych.

To w pełni przygotowany dom do etapu prac wykończeniowych, z wykonanymi instalacjami i ociepleniem.

W zakres wchodzi:

  • wszystkie elementy stanu surowego zamkniętego,
  • kompletna izolacja termiczna ścian i dachu,
  • instalacje: elektryczna, wodno-kanalizacyjna, grzewcza (wraz z ogrzewaniem podłogowym w pomieszczeniach mieszkalnych),
  • tynki wewnętrzne lub płyty g-k na ścianach, przygotowane do malowania,
  • wylewki podłogowe,
  • elewacja zewnętrzna wykończona zgodnie z projektem,
  • przygotowanie pod montaż osprzętu i białego montażu.

W tym standardzie dom jest gotowy do indywidualnego wykończenia przez inwestora.

Kompletnie wykończony dom, gotowy do zamieszkania w dniu odbioru.

W zakres wchodzi:

  • wszystkie elementy stanu deweloperskiego,
  • malowanie ścian i sufitów,
  • ułożenie podłóg w pomieszczeniach (panele, gres, płytki lub inne materiały zgodnie z ustaleniami),
  • montaż drzwi wewnętrznych,
  • pełny biały montaż w łazienkach i kuchni (armatura, ceramika, wyposażenie),
  • montaż opraw oświetleniowych,
  • wykończenie i wyposażenie kuchni (meble, sprzęt AGD — w zależności od ustaleń),
  • elementy dekoracyjne i wykończeniowe zgodne z projektem lub ustaleniami z inwestorem.

Dom w standardzie pod klucz to rozwiązanie dla osób, które chcą od razu zamieszkać, bez dodatkowych prac wykończeniowych.

Oferujemy kompleksowe wsparcie:

1

Dobór idealnego projektu domu

Pomagamy znaleźć projekt dopasowany do Twoich potrzeb i oczekiwań.

1

2

Wsparcie w wyborze działki pod inwestycję

Doradzamy przy wyborze odpowiedniej lokalizacji, uwzględniając wszystkie kluczowe aspekty.

3

Budowa domu pod klucz

Realizujemy inwestycje od fundamentów aż po wykończenie, oddając gotowy dom do zamieszkania.

3